Na Dobrej vyrastie nový objekt služieb Bar u námorníka

15.08.2023

Obci Kvakovce bol doručený Návrh na vydanie územného rozhodnutia, ktorý sa týka nového objektu služieb v rekreačnej oblasti Domaša Dobrá na ulici Ku prístavu. Čo sa ide stavať a ako to bude vyzerať?

 

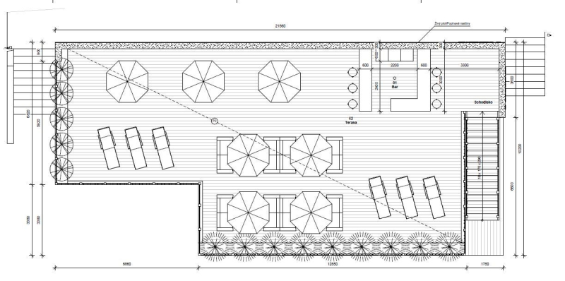
Vlastníkom pozemku je spoločnosť Rege Gastro s.r.o., ktorá plánuje na danom mieste postaviť novú prevádzku ,Bar u námorníka". Tá rozšíri ponuku poskytovaných služieb v rekreačnej oblasti Domaša Dobrá.

 

Súčasťou prevádzky bude bar, terasa, sociálne zariadenia aj pre návštevníkov pláže, ktoré budú prístupné z vonku (nie z vnútra prevádzky), wc pre invalidov, sprchy pre verejnosť aj parkové úpravy.  

 

V súvislosti s týmto investičným zámerom niektorí ľudia na Dobrej, účelovo šíria medzi chatárov a návštevníkov rôzne intrigy, ktoré sa však nezakladajú na pravde. Robia tak zrejme z dôvodu, že sa obávajú väčšej konkurencie,  alebo to robia v snahe zachovať pre niektoré prevádzky monopolné postavenie pri poskytovaní služieb, ale v každom prípade sa jedná o neseriózne správanie.

 

Konanie formou verejnej vyhlášky 

Obci Kvakovce záleží na rozvoji rekreačnej oblasti, má záujem o maximálne transparentný proces a preto z dôvodu, že sa jedná o verejný priestor pri vode a aby zúžila priestor pre účelové intrigánstvo zo strany niektorých jednotlivcov, bude celé stavebné konanie pri stavbe ,,Bar u námorníka" z rozhodnutia Obce Kvakovce prebiehať formou verejnej vyhlášky, aj keď to tak vôbec nemuselo byť.

 

Každý chatár a návštevník môže sám posúdiť, čo sa bude na danom mieste na ulici Ku prístavu realizovať a za akých podmienok sa to bude realizovať. Tiež každý, kto to uzná za vhodné a cíti sa stavbou dotknutí sa môže k navrhovanému objektu vyjadriť.

 

Oznámenie o začatí územného konania tu: Oznámenie - verejná vyhláška

 

Otázky a odpovede na vyvrátenie účelovo šírených intríg a fám

 

Je umiestnenie stavby v súlade s platným Územným plánom obce Kvakovce?

Áno, je. Obec Kvakovce na verejnej tlačovej konferencii v roku 2015 predstavila víziu rekreačnej oblasti Domaša Dobrá, podľa ktorej sa cielene a systematicky postupuje dodnes. Súčasťou prezentovanej vízie vtedy bol aj ,,Bar u námorníka“ na ulici Ku prístavu.

 

 Link tu: Prezentácia zámeru Obce Kvakovce z roku 2015

 

Tento objekt je súčasťou všetkých prezentačný videí obce týkajúcich sa projektového zámeru Národného centra vodných športov, oddychu a športovej histórie. Obec Kvakovce má celú víziu transparentne zverejnenú na svojej webovej stránke.

 

Link tu:  Vizia Dobrej 2015

 

Čo je na danom mieste v Územnom pláne obce?

Obec Kvakovce najprv v závere roka 2015 predstavila verejnosti svoju víziu strediska, následne sa v rokoch 2016 a 2017 intenzívne pracovalo na zmenách Územného plánu Obce Kvakovce.

 

Všetky tieto zmeny sa realizovali v súlade so zverejnenou štúdiou a teda okrem nábrežnej promenády, plávajúcej promenády, múzea, prístavísk a verejnej zelene bol súčasťou zmien a doplnkov aj ,,Bar u námorníka“ na ulici Ku prístavu.

 

Link tu:   Zverejnenie Návrhu zmien a doplnkov č. 1 k ÚP Obce Kvakovce z roku 2016

 

Celý proces prebiehal maximálne transparentne, bol verejný, verejne dostupný, verejne prerokovaný a trval skoro dva roky.

 

Následne v roku 2017 boli Zmeny a doplnky č. 1 k Územnému plánu Obce Kvakovce schválené  na verejnom zasadnutí obecného zastupiteľstva.

 

Mohol súčasný majiteľ pozemku ovplyvniť schvaľovanie územnoplánovacej dokumentácie?

Nie nemohol. Konateľom spoločnosti Rege gastro s.r.o. je Ing. René Pavlík. V čase, keď sa o zmenách územného plánu rokovalo, teda v rokoch 2015, 2016 a 2017, tak vtedy pán Pavlík nebol poslancom obecného zastupiteľstva.

 

Stal sa nim až 17. apríla 2020 ako náhradník za poslanca Ing. Františka Tomka, ktorý žiaľ, zomrel.

 

Zároveň treba uviesť, že vlastníkom pozemku bol vtedy p. Hricko, ktorý ho ponúkal na odpredaj a odpredal ho až v druhej polovici roka 2017 spoločnosti Rege Gastro s.r.o., ktorá ho vlastní dodnes. Záujemcov o tento pozemok bolo podľa našich informáicí viac, čiže každý, kto neuspel bol a je nespokojný.

 

Kto hlasoval za zmeny územného plánu v súlade so štúdiou?

Ako sme uviedli, Zmeny a doplnky č. 1 sa začali pripravovať v súlade so štúdiou, ktorá bola prezentovaná koncom roka 2015 a hlasovali za to a teda aj za objekt ,,Bar u námorníka“ dňa 30.11.2015 títo poslanci obce:

 

Uznesenie:

Obecné zastupiteľstvo schvaľuje zadávací dokument pre spracovanie Zmien a doplnkov č. 1. k Územnému plánu obce Kvakovce v rekreačnej oblasti Domaša Dobrá, ktorý spracoval predseda Komisie urbanizmu, architektúry a krajinotvorby. Schvaľuje podanie žiadosti o dotáciu na spracovanie zmien a doplnkov k Územnému plánu obce Kvakovce a spolufinancovanie vo výške najmenej 20% prípade schválenia žiadosti o dotáciu. Obstaranie a schvaľovanie potrvá najviac tri roky. 

 

ZA: Anna Janevová, Ing. Katarína Švecová, Ing. František Tomko

Proti: 0

Zdržal sa: 0

 

Uznesenie tu: Uznesenie č. 86/2016

 

Prečo sa šíria v tejto súvislosti účelovo intrigy medzi verejnosť?

Rekreačná oblasť Domaša Dobrá sa rozvíja dynamicky, zrealizovaných bol celý rad projektov a ďalšie sú v príprave. Namiesto priloženia ruky k dielu majú niektorí ľudia potrebu účelovo vyvolávať rôzne intrigy.

 

Žiaľ, nie všetkým ľuďom na Dobrej vyhovuje, že na Dobrej v danej zóne pribudne konkurencia, ktorá vyvolá tlak na ceny poskytovaných služieb v stredisku.

 

Aj preto zrejme predmetné osoby vyvíjajú rôzne aktivity, ktorých cieľom je zmariť snahu súkromnej firmy zrealizovať dlhodobo plánovaný zámer a teda postaviť objekt ,,Bar u námorníka“ na mieste, kde bol plánovaný od roku 2015.

 

Tým, že Obec Kvakovce zverejnila celý proces vie každý chatár aj návštevník sám reálne zhodnotiť, či pripravovaná aktivita je na prospech strediska, alebo nie.

 

Prispeje ,,Bar u námorníka“ k rozvoju rekreačnej oblasti?

Názor vedenia Obce Kvakovce je, že prispeje. V danom mieste chýbajú sociálne zariadenia a zázemie pre ľudí na pláži, či už sa jedná o návštevníkov spomedzi chatárov, alebo bežných turistov.

 

Prevádzka je citlivo osadená do územia, je nízka, sociálne zariadenia sú osadené zvonku práve preto, aby ľudia na pláži nemuseli chodiť na wc cez vnútro prevádzky.  Súčasťou bude aj wc pre invalidov, ktoré v tejto časti úplne absentuje.

 

Súčasťou sú aj verejné sprchy a parkové úpravy. Podľa Obce Kvakovce navrhovaný objekt rozšíri ponuku poskytovaných služieb, prispeje ku konkurencii a rozšíri možnosť výberu pre ľudí.

 

 Vizualizácie tu:

Umiestnenie na ortofotomape

 

Situácia

 

Prvé nadzemné podlažie  

 

Druhé nadzemné podlažie

 

Pohľady

 

 

 

Klikateľné obrázky: